2011-06-22
Unieważnienie postępowania (19.07.2011)


Szpital im. Stanisława Leszczyńskiego
ul. Raciborska 26, 40-074 Katowice

ogłasza przetarg nieograniczony o wartości szacunkowej zamówienia powyżej 14.000 EURO na wykonanie dokumentacji projektowo-wykonawczej i wykonanie prac budowlano-adaptacyjnych, zgodnie z tą dokumentacją, Pracowni Endoskopii w Szpitalu im. Stanisława Leszczyńskiego w Katowicach, przy ul. Raciborskiej 27, w formule "zaprojektuj i wybuduj".

Podstawa prawna
Ustawa z dnia 29 stycznia 2004 r. – Prawo zamówień publicznych (Dz.U. z 2010r., Nr 113, poz. 759 z późn. zm.) – zwana dalej ustawą Pzp.

Specyfikacja Istotnych Warunków Zamówienia – zwana dalej SIWZ – jest dostępna na stronie internetowej Zamawiającego: www.szpital.net.pl
Na wniosek Wykonawcy SIWZ zostanie wysłana za zaliczeniem pocztowym (koszt 10 zł brutto).

Opis przedmiotu zamówienia
Przedmiotem zamówienia jest wykonanie dokumentacji projektowo-wykonawczej i wykonanie prac budowlano-adaptacyjnych, zgodnie z tą dokumentacją, Pracowni Endoskopii w Szpitalu im. Stanisława Leszczyńskiego w Katowicach, przy ul. Raciborskiej 27, w formule "zaprojektuj i wybuduj".
Szczegółowe założenia i koncepcja została zawarta w Programie Funkcjonalno-Użytkowym Pracowni Endoskopii- zwanym dalej "programem f-u" – Załącznik Nr 1 do SIWZ.

Przedmiot zamówienia obejmuje:
A. Wykonanie w oparciu o program f-u:
  1. Projektu budowlanego (również w wersji elektronicznej) adaptacji pomieszczeń znajdujących się w budynku głównym Zespołu Nr 1 Szpitala na Pracownię Endoskopii, według wymagań zawartych w Rozporządzeniu Ministra Infrastruktury z dnia 3 lipca 2003 r. w sprawie szczegółowego zakresu i formy projektu budowlanego (Dz.U. z 2003r. Nr 120, poz. 1133) wydanego na podstawie art. 34 ust. 6 pkt 1 ustawy z dnia 07.07.1994r. – Prawo budowlane – 4 egzemplarze;
  2. Projektów wykonawczych (również w wersji elektronicznej) adaptacji pomieszczeń – po 4 egzemplarze;
  3. Przedmiarów robót i kosztorysów inwestorskich adaptacji pomieszczeń – 2 egzemplarze;
  4. Kompletu opracowań – Specyfikacji Technicznej Wykonania i Odbioru Robót w zakresie prac budowlano-adaptacyjnych – po 2 egzemplarze.
B. Wystąpienie i uzyskanie decyzji pozwolenia na budowę na realizację projektu adaptacji pomieszczeń.
C. Wykonanie prac budowlanych w adaptowanych pomieszczeniach, zgodnie z opracowanymi projektami i Specyfikacjami Technicznymi Wykonania i Odbioru Robót.
D. Pełnienie nadzoru autorskiego w trakcie realizacji projektu adaptacji.

Ponadto, dokumentacja musi zawierać wszelkie opracowania wynikające z przepisów szczegółowych, a także uzgodnienia pod względem BHP, ergonomii, przeciwpożarowym i sanitarno-epidemiologicznym.

Oznaczenie we Wspólnym Słowniku Zamówień CPV:
45215140-0 roboty budowlane w zakresie obiektów szpitalnych
45300000-0 budowlane prace instalacyjne w budynkach
45400000-1 roboty wykończeniowe w zakresie obiektów budowlanych
71250000-5 usługi architektoniczne, inżynieryjne i pomiarowe
71240000-2 usługi architektoniczne, inżynieryjne i planowania

Zamawiający nie dopuszcza składania ofert ani częściowych, ani wariantowych.

Termin realizacji zamówienia:
Wykonanie przedmiotu zamówienia w terminie do 8 miesięcy od daty zawarcia umowy.

Warunki udziału w postępowaniu
W postępowaniu mogą uczestniczyć Wykonawcy, którzy spełniają warunki określone w art. 22 ust. 1 ustawy Pzp, nie podlegają wykluczeniu z postępowania o udzielenie zamówienia w okolicznościach, o których mowa w art. 24 ust. 1 ustawy Pzp. oraz dołączą do oferty dokumenty, o których mowa w dziale SIWZ Zawartość Oferty tj.:

1. Wypełnią i podpiszą Załączniki do SIWZ.

2. W celu wykazania spełnienia przez Wykonawców warunków, o których mowa w art. 22 ust. 1 ustawy Pzp Wykonawcy dołączą do Oferty:
a) wykaz wykonanych, a przypadku świadczeń okresowych lub ciągłych również wykonywanych, usług w zakresie niezbędnym do wykazania spełnienia warunku wiedzy i doświadczenia w okresie ostatnich trzech lat przed upływem terminu składania ofert, a jeżeli okres prowadzenia działalności jest krótszy – w tym okresie, z podaniem ich wartości, przedmiotu, dat wykonania i odbiorców, oraz załączeniem dokumentu potwierdzającego, że te usługi zostały wykonane lub są wykonywane należycie (min. 1 dokument) Zamawiający uzna warunek za spełniony jeżeli Wykonawca wykaże się wykonaniem (minimum 1) projektu budowlanego pracowni medycznej o powierzchni użytkowej min. 90 m2
b) wykaz robót budowlanych w zakresie niezbędnym do wykazania spełniania warunku wiedzy i doświadczenia, wykonanych w okresie ostatnich pięciu lat przed upływem terminu składania ofert, a jeżeli okres prowadzenia działalności jest krótszy – w tym okresie z podaniem ich rodzaju i wartości, daty i miejsca wykonania oraz załączeniem dokumentu potwierdzającego, że roboty zostały wykonane zgodnie z zasadami sztuki budowlanej i prawidłowo ukończone (min. 1 dokument). Zamawiający uzna warunek za spełniony jeżeli Wykonawca wykaże się wykonaniem (minimum 1) prac budowlano-adaptacyjnych pomieszczeń w obiektach służby zdrowia, z wyszczególnieniem miejsca i zakresu prac.

3. W celu wykazania braku podstaw do wykluczenia z postępowania o udzielenie zamówienia Wykonawców w okolicznościach, o których mowa w art. 24 ust.1 pkt 2 ustawy Pzp Wykonawcy dołączą do Oferty:
a) aktualny odpis z właściwego rejestru jeżeli odrębne przepisy wymagają wpisu do rejestru, wystawiony nie wcześniej niż 6 miesięcy przed upływem terminu składania ofert.
b) w stosunku do osób fizycznych podpisane przez osobę uprawnioną do reprezentowania Wykonawcy Oświadczenie Wykonawcy, stanowiące Załącznik Nr 7 do SIWZ – dotyczy osób fizycznych,

4. W przypadku Wykonawcy będącego osobą fizyczną do oferty należy dołączyć zaświadczenie o wpisie do ewidencji działalności gospodarczej, wystawione nie wcześniej niż 6 miesięcy przed upływem terminu składania ofert, celem wykazania uprawnień do reprezentowania Wykonawcy.

Ocena spełniania warunków udziału w postępowaniu odbywać się będzie na zasadzie spełnia/ nie spełnia.

Wadium:
W postępowaniu jest wymagane wadium w wysokości 1.500,00 zł.

Kryterium oceny ofert:
1. Cena całkowita (brutto) podana w ofercie za wykonanie całości przedmiotu zamówienia - 90%
2. Termin wykonania całości przedmiotu zamówienia w dniach od daty zawarcia umowy - 10%

Miejsce i termin złożenia i otwarcia ofert
Oferty należy złożyć do dnia 18.07.2011r. do godz. 10:00 w Kancelarii Dyrektora Szpitala w Katowicach przy ul. Raciborskiej 26.
Otwarcie ofert nastąpi w dniu 18.07.2011r. o godz. 11:00 w Sekcji Zamówień Publicznych w Katowicach przy ul. Raciborskiej 28 (budynek Przychodni Szpitala, II piętro).

Termin związania ofertą wynosi 30 dni od upływu terminu składania ofert.

Zamawiający nie ogranicza
możliwości ubiegania się o zamówienie publiczne tylko dla Wykonawców, u których ponad 50% pracowników stanowią osoby niepełnosprawne.

Zamawiający nie zamierza
1. zawierać umowy ramowej,
2. ustanawiać dynamicznego systemu zakupów,
3. zastosować aukcji elektronicznej przy wyborze najkorzystniejszej oferty.

Zamawiający nie przewiduje
1. zwrotu kosztów udziału w postępowaniu,
2. zamówień uzupełniających, o których mowa w art. 67 ust. 1 pkt 6 ustawy Pzp,
3. udzielenia zaliczek na poczet wykonania zamówienia,
4. istotnej zmiany postanowień zawartej umowy w stosunku do treści oferty, na podstawie której dokonano wyboru Wykonawcy,
5. unieważnienia postępowania o udzielenie zamówienia, w przypadku nieprzyznania środków pochodzących z budżetu Unii Europejskiej oraz niepodlegających zwrotowi środków z pomocy udzielonej przez państwa członkowskie Europejskiego Porozumienia o Wolnym Handlu (EFTA), które miały być przeznaczone na sfinansowanie całości lub części zamówienia.

Zamawiający zastrzega sobie prawo do
1. zmiany treści ogłoszenia o zamówieniu opublikowanego w Biuletynie Zamówień Publicznych, o której mowa w art. 12a ustawy Pzp. W przypadku dokonania zmiany w ogłoszeniu, Zamawiający – o ile zajdzie taka konieczność – przedłuży termin składania ofert o czas niezbędny do wprowadzenia zmian w ofertach,
2. zmiany treści SIWZ z zachowaniem wymogów, o których mowa w art. 38 ust. 4 – 6 ustawy Pzp. Zamawiający niezwłocznie przekaże dokonaną zmianę wszystkim Wykonawcom, którym przekazał SIWZ oraz umieści ją na stronie internetowej.

Osoba upoważniona do udzielania informacji - lek. med. Witold Nowak – Z-ca Dyrektora ds. Lecznictwa
Telefon 32 2511-761
Fax 32 2514-533

Ogłoszenie o zamówieniu zostało zamieszczone w Biuletynie Zamówień Publicznych w dniu 22.06.2011r.


Dodatkowe materiały:
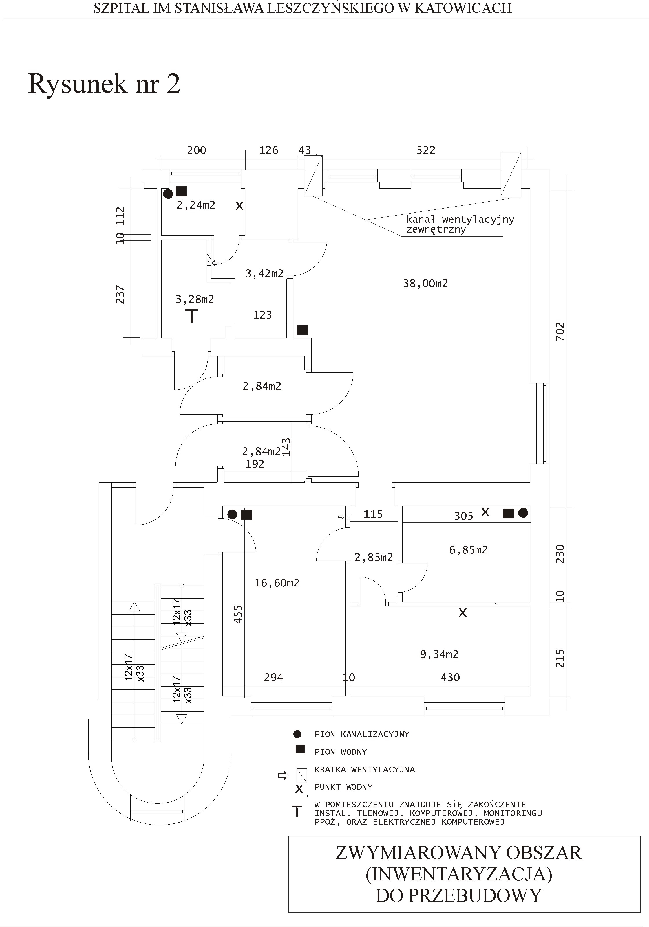
19.07.2011 - Unieważnienie postępowania 19.07.2011 - Unieważnienie postępowania Rysunek 1 - Lokalizacja obszaru do przebudowy na Pracownię Endoskopii Rysunek 1 - Lokalizacja obszaru do przebudowy na Pracownię Endoskopii Rysunek 2 - Zwymiarowany obszar do przebudowy Rysunek 2 - Zwymiarowany obszar do przebudowy
Rysunek 3 - Lokalizacja elementów wyposażenia instalacji pomieszczeń Prac. Endoskopii Rysunek 3 - Lokalizacja elementów wyposażenia instalacji pomieszczeń Prac. Endoskopii SIWZ SIWZ
W celu poprawnego działania strona wykorzystuje mechanizm plików cookies.
Dalsze przeglądanie stron oznacza zgodę na zapisywanie tych plików w urządzeniu, z którego korzystasz.
W przypadku braku zgody, należy wyłączyć obsługę plików cookies w przeglądarce.
© 2003 by